A PRE-APPLICATION for a fast food chain has been submitted in Bude.
Plans have been submitted for a new McDonalds restaurant situated on Binhamy Retail Park in the coastal town (PA25/00281/PREAPP).
In pre-application advice requests, would-be developers submit often outline proposals to a local authority to ascertain whether it is likely to gain support or not prior to submitting a planning application.
It is not in itself a planning application but is often used to gauge the viability of proposals and what might be required
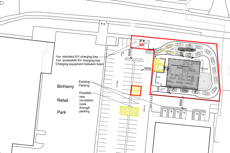
In a pre-application letter, Lichfields, which is representing McDonalds, explained: “Access is via Sandpiper Road, which connects to Stratton Road (A3072) via a roundabout to the north west. There is a pedestrian access through the northern boundary of the site which crosses across the site to reach B&M.
“The site area consists of 54 surface car parking spaces within the wider retail car park. It includes related 90-minute parking restrictions.

“The proposal would be in general accordance with the retail use of the site and consistent with nearby hot food takeaway uses that have been previously deemed acceptable. It is not considered to be of sufficient scale to have a detrimental effect on the viability of Bude’s town centre.”
The site is also set to benefit from a ‘Drive-Thru’ amenity.
In the application, those behind the proposal said that it would use an underutilised part of the retail park to generate investment and new jobs, saying it will create the equivalent of 120 full time jobs in both full and part time roles.
Keep up to date with the latest planning applications and other statutory notices (such as alcohol licensing and probates) that affect where you live by visiting our online Public Notice Portal – be the first to know by visiting www.publicnoticeportal.uk/cornish-and-devon-post-series





Comments
This article has no comments yet. Be the first to leave a comment.